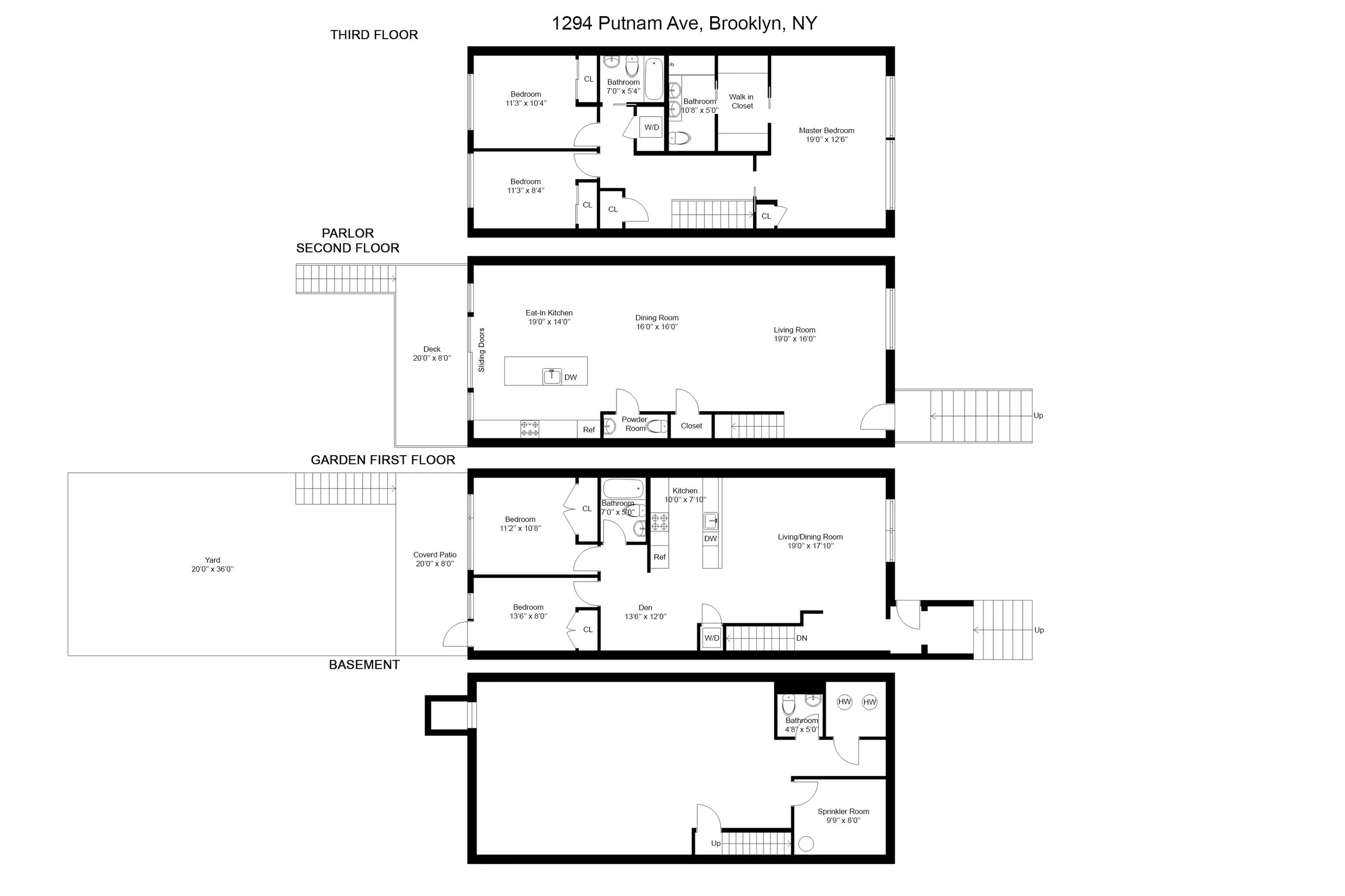
Floorplans

An accurate floorplan is not only a requirement for many brokerage and third-party web marketing platforms, it is considered one of the most important tools buyers and renters reference in New York City. Keep it clean and simple!

 
 
Property Floor Plan
Property Floor Plan
 

 

Ready to take your property viewing to the next level?